Alice Oprică Arhitectură
Projects
About Us
Recruitment
Contact
Follow us on Facebook
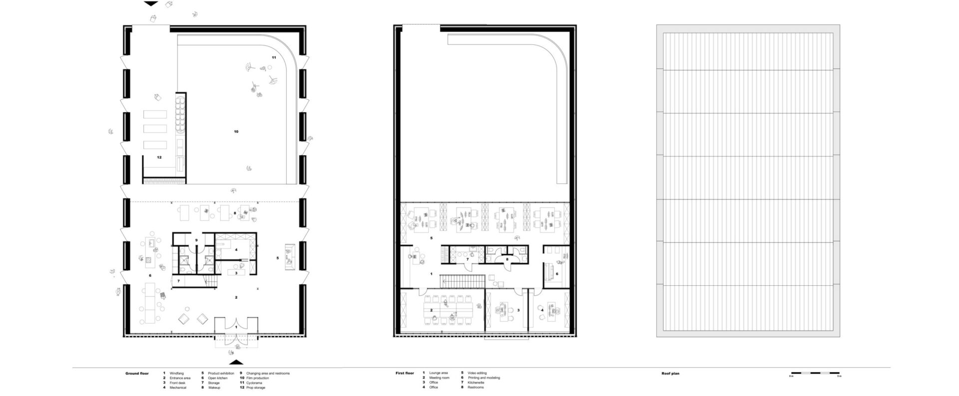
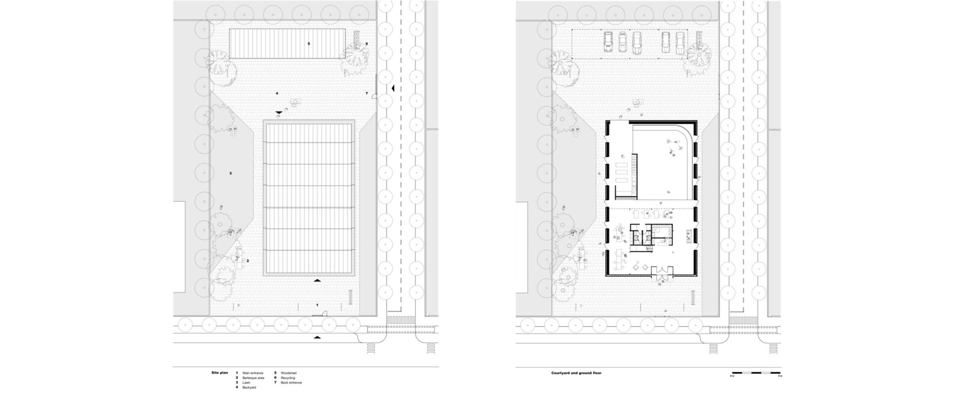
Filming studio for Tactic Video
Sibiu
2021
Read more
© 2026 Alice Oprică Arhitectură